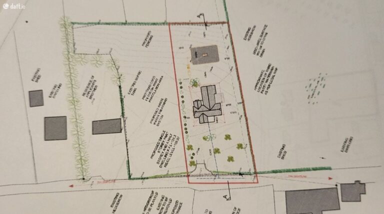
Abbey Property Sales offer this lovely site with full planning permission close to all amenities in Ballinamore. The site has just got planning for a...